Продается 3-х комн. квартира, 98 кв.м., 6/10 эт
| Стоимость | 7 700 000 |
|---|---|
| Ремонт | Евро |
| Балкон | Лоджия |
| Доля в квартире | Нет |
| Комнат в квартире | 3 |
| Площадь, кв.м. | 98 |
| Площадь кухни, кв.м. | 35 |
| Этаж | 6 |
| Этажность | 10 |
| Материал стен | монолит |
| Населенный пункт | Геленджик |
|---|---|
| Район города | Парус |
| Улица | улица Грибоедова |
ТРЕХКОМНАТНАЯ КВАРТИРА 98 КВ.М
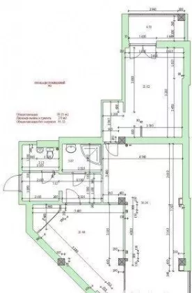
B квартире сделан евроремонт узаконенной перепланировкой. Установлен современный импортный насос, бак для холодной воды емкостью 640 л., бойлер 100 л., новая современная мебель, красивое освещение, во всех комнатах установлены кондиционеры (фирмы Fujitsu), установлены дополнительные батареи , лоджия застеклена и утеплена (дополнительная батарея), современная кухня, совмещенная с гостиной (американский вариант кухни). состоит из: прихожей (коридор) - 8 кв.м.; ванной комнаты - 3,6 кв.м.; санузла, совмещенного с бойлерной - 2,9 кв.м.; спальни - 18,8 кв.м. с 2 встроенными шкафами - 2,3 кв.м. и 1,4 кв.м. из спальни выход на лоджию - 4кв.м.; спальни - 16,7 кв.м и встроенным шкафом - 1,6 кв.м.; гостиной совмещенной с кухней - 34,9 кв.м. Все остается. Море в шаговой доступности
объект 511















